Floorplans

Versatile and adaptable shelter options designed to meet the diverse needs of Disaster Relief, Private Customers, and Commercial Customers alike.

Functional Layouts

Don’t let the dimensions fool you.

Each floorplan is optimized for functionality, offering a seamless living experience tailored to your requirements. Whether you’re looking for a cozy retreat or a spacious living area, our floorplans provide the perfect balance of form and function, allowing you to make the most of your space.

Practical Design

Our floorplans are meticulously crafted with practicality in mind.

From the 8ft high back walls to the 10ft high front walls that open up to a covered deck on each Mod, every detail is thoughtfully designed to meet your needs. Quality is paramount in every aspect of our shelters, ensuring durability and comfort in any scenario.

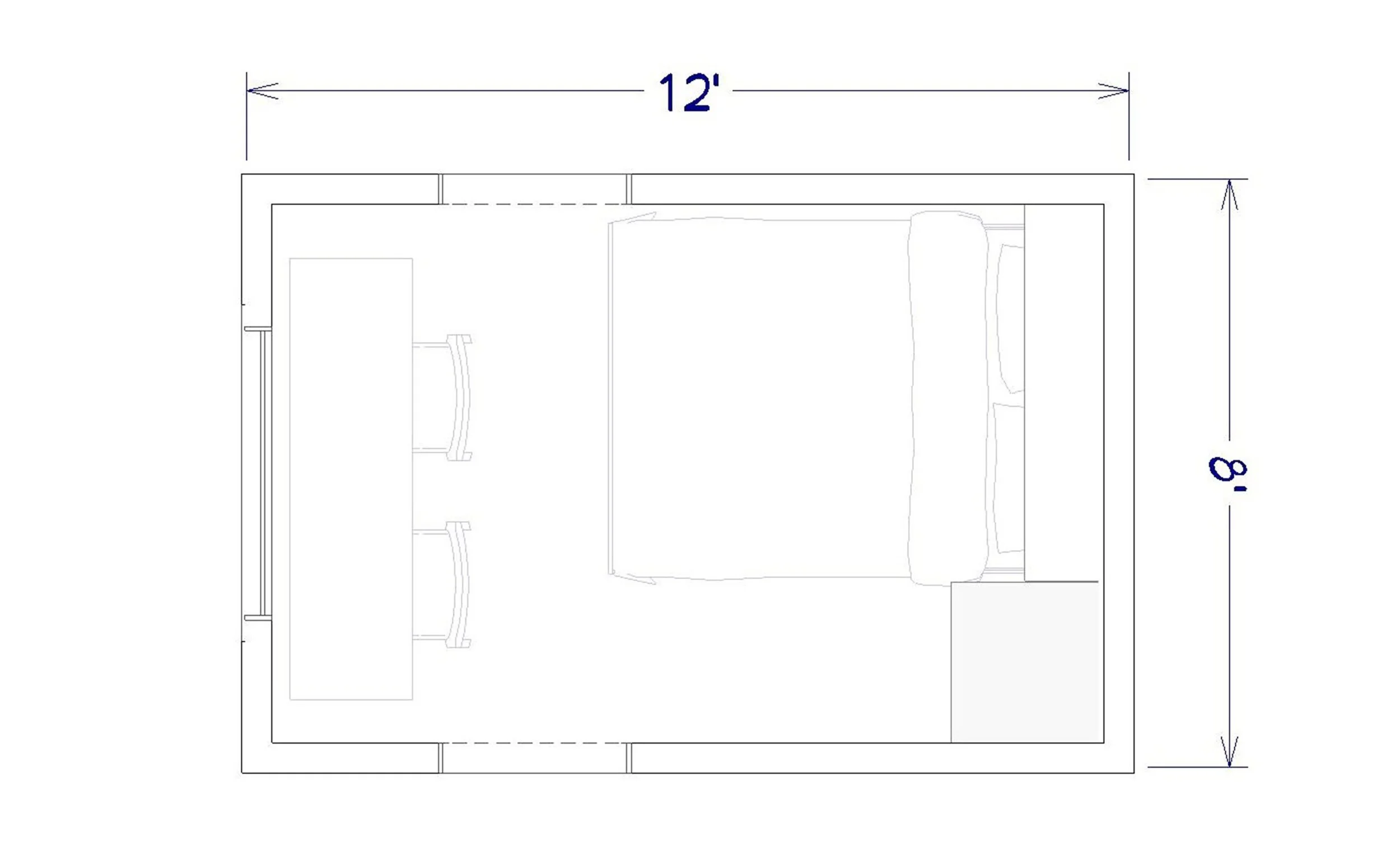
01. Queen Bed

The Queen Bedroom Mod offers a versatile and comfortable living space tailored to meet the needs of various applications, from residential living to temporary shelter solutions. With its compact yet functional design, it provides an inviting and restful environment for occupants to relax, unwind, and recharge.

Choice of interior finishes, including flooring, wall cladding, and cabinetry materials.

Interior Dimensions

  • Width 7 feet 4 inches

  • Length 11 feet 4 inches

  • Total Interior Area Approximately 83.33 sq/ft

Key Features

  • Spacious sleeping area designed to accommodate a queen-sized bed comfortably, providing a restful night's sleep for occupants.

  • Built-in storage solutions within Murphy Bed, drawers and overhead shelving to maximize space and organization.

  • Flexible layout options to personalize the space according to individual preferences and needs, allowing for the integration of additional furniture or amenities.

  • Strategically placed windows or skylights to optimize natural light and ventilation, enhancing the overall comfort and ambiance of the bedroom.

  • Premium-quality construction materials and finishes selected for durability, aesthetics, and sustainability, ensuring a long-lasting and aesthetically pleasing living environment.

  • Thoughtfully designed layout to provide privacy and seclusion within the bedroom area, creating a cozy and intimate retreat for occupants.

02. Kitchen & Bathroom

The Kitchen/Bath Mod offers a comprehensive solution for essential living amenities, combining functionality, efficiency, and comfort in a compact and modular design. Whether used as a standalone unit or integrated into a larger living space, it provides the essential comforts of home while maximizing usability and versatility.

Kitchen Area Key Features

Kitchen Area Interior Dimensions

  • Width 7 feet 4 inches

  • Length 7 feet

  • Total Interior Area Approx. 51.67 sq/ft

  • Thoughtfully designed kitchen layout optimized for efficiency and convenience, with all essential amenities within easy reach.

  • Includes a sink, refrigerator, stackable washer/dryer unit, and electric stovetop for versatile cooking capabilities.

  • Built-in cabinets and storage solutions to accommodate cookware, utensils, pantry items, and cleaning supplies.

  • Generous countertop space for meal preparation, cooking, and dining, enhancing the functionality of the kitchen area.

Bathroom Area Key Features

Bathroom Area Interior Dimensions

  • Width 7 feet 4 inches

  • Length 3 feet 6 inches

  • Total Interior Area Approx. 26.33 sq/ft

  • Equipped with a shower stall for bathing and personal hygiene needs, featuring durable and easy-to-clean materials.

  • Option for a standard flush toilet or a composting toilet for eco-friendly waste management solutions.

  • Space-efficient layout maximizing usability while minimizing footprint, ideal for small-scale living environments.

  • Integrated storage solutions for towels, toiletries, and other bathroom essentials, ensuring a clutter-free and organized space.

03. Kitchen Large

The Large Kitchen Mod offers a spacious and well-equipped kitchen environment tailored to meet the demands of modern living. With its functional design, premium appliances, and customizable options, it serves as the heart of the home, facilitating cooking, dining, and socializing activities with ease and style.

Key Features

Interior Dimensions

  • Width 7 feet 4 inches

  • Length 11 feet 4 inches

  • Total Interior Area Approx. 83.33 sq ft

  • The Large Kitchen Mod offers ample space for cooking, dining, and entertaining, with a generous interior area measuring 7 feet 4 inches by 11 feet 4 inches.

  • Designed for functionality and efficiency, the kitchen layout allows for seamless workflow and easy access to all essential amenities.

    The inclusion of a barstool tabletop provides a convenient dining area and additional workspace for meal preparation and socializing.

  • Equipped with high-quality kitchen appliances, including a refrigerator, electric stove/oven , dishwasher, and ample cabinet storage for cookware and utensils.

  • The inclusion of a barstool tabletop window provides a seamless connection to the adjacent living room mod, allowing for interaction with occupants and enhancing the overall sense of space and openness.

    Strategically placed windows or skylights maximize natural light and ventilation, creating a bright and inviting atmosphere within the kitchen area.

04. Bath & Laundry

The Bath & Laundry Mod offers a compact yet functional solution for essential bathroom and laundry needs, combining convenience, efficiency, and versatility in a modular design. Whether used as a standalone unit or integrated into a larger living space, it provides the essential amenities for modern living while maximizing space utilization and usability.

Functional Design

Modular Configuration
Allows for flexible placement of the Bath + Laundry Mod within the living space, catering to various layout preferences and requirements.

Customizable Options
Choose from a range of finishes, fixtures, and appliances to personalize the bathroom and laundry areas according to individual tastes and needs.

Bathroom Area Key Features

Bathroom Area Interior Dimensions

  • Width 4 feet 4 inches

  • Length 5 feet 10 inches

  • Total Interior Area Approx. 25.56 sq/ft

  • Efficient layout maximizing space utilization while providing all essential bathroom amenities.

  • Includes a shower stall with durable and easy-to-clean materials

  • Equipped with a standard flush toilet or optional composting toilet for eco-friendly waste management.

  • Features a sink with cabinet storage underneath for toiletries and bathroom essentials.

Laundry Area Key Features

Laundry Area Interior Dimensions

  • Width 7 feet 4 inches

  • Length 5 feet 1 inches

  • Total Interior Area Approx. 37.83 sq/ft

  • Includes a stackable washer/dryer unit for convenient laundry tasks within the comfort of the home.

  • Offers ample countertop space and cabinet storage for sorting, folding, and storing laundry items.

  • Doubles as a utility area for additional tasks such as ironing, sewing, or craft projects.

05. Living Room

The Large Living Room Mod offers a spacious and inviting environment for leisure, work, and social activities, incorporating versatile features and comfortable amenities to enhance the overall living experience. With its functional design, convertible furniture, and cozy wood fire stove, it provides a welcoming retreat for occupants to enjoy and make memories in.

Key Features

Interior Dimensions

  • Width 7 feet 4 inches

  • Length 11 feet 4 inches

  • Total Interior Area Approx. 83.33 sq ft

  • The Large Living Room Mod offers ample space for relaxation, entertainment, and socializing, with a generous interior area measuring 7 feet 4 inches by 11 feet 4 inches.

  • Includes a versatile couch that can be converted into a bed for additional sleeping accommodations, making it ideal for overnight guests or multifunctional living spaces.

    The convertible design maximizes space utilization while providing flexibility and convenience for varying lifestyle needs.

  • Features a dedicated desk or seating area situated by a window, offering natural light and scenic views for work, study, or contemplation.

    The well-lit and comfortable space provides an ideal environment for productivity, creativity, or simply enjoying the surrounding environment.

  • Includes a wood fire stove for warmth, ambiance, and supplementary heating during colder months.

    The addition of a wood fire stove enhances the cozy and inviting atmosphere of the living room, creating a focal point for gatherings and relaxation.

Functional Design

Modular Configuration
The modular design allows for flexible placement of the Large Living Room Mod within the living space, adapting to various layout preferences and requirements. The open-concept layout provides versatility for furniture arrangement and interior design customization according to individual preferences.

Comfortable and Inviting Atmosphere
Designed to create a comfortable and inviting atmosphere for relaxation and leisure activities, with ample seating, natural light, and cozy amenities. The combination of functional design elements and aesthetic details enhances the overall quality of life and enjoyment within the living space.

06. Bunk Room

The Twin Bunk Room Mod offers a practical and efficient solution for sleeping arrangements, combining functionality, comfort, and space-saving design elements to create a welcoming and accommodating living space. Whether used as standalone sleeping quarters or integrated into a larger living area, it provides a comfortable and private retreat for occupants to rest and recharge.

Interior Dimensions

  • Width 7 feet 4 inches

  • Length 11 feet 4 inches

  • Total Interior Area Approx. 83.33 sq/ft

Key Features

Twin Bunk Beds

The Twin Bunk Room Mod is equipped with built-in twin bunk beds, providing comfortable sleeping accommodations for 2 individuals. Each bunk bed offers a cozy and private sleeping space, with sturdy construction and supportive mattresses for a restful night's sleep.

Functional Design

Optimized Layout
Designed with efficiency in mind, the Twin Bunk Room Mod maximizes space utilization within its compact footprint to provide functional and comfortable living quarters. The thoughtful layout ensures that each occupant has sufficient room for relaxation and personal belongings, enhancing the overall quality of living within the space.

Customizable Options
The modular design of the Twin Bunk Room Mod allows for customization options to suit individual preferences and needs. Choose from a range of finishes, fixtures, and amenities to personalize the interior space according to specific requirements and aesthetic preferences.

07. Queen Bunk Room

The Queen Bunk Room Mod offers a spacious and versatile solution for sleeping arrangements, combining functionality, comfort, and space-saving design elements to create a welcoming and accommodating living space. Whether used as standalone sleeping quarters or integrated into a larger living area, it provides a comfortable and private retreat for occupants to rest and recharge.

Interior Dimensions

  • Width 7 feet 4 inches

  • Length 11 feet 4 inches

  • Total Interior Area Approx. 83.33 sq/ft

Key Features

Built-in Queen Bunk Beds

The Queen Bunk Room Mod features built-in queen-size bunk beds, offering spacious and comfortable sleeping accommodations for up to four individuals. Each bunk bed is designed to accommodate a queen mattress, providing ample space for a restful night's sleep and ensuring optimal comfort for occupants.

Desk or Storage Along Window
Includes a dedicated desk or storage area situated along a window, providing a functional space for work, study, or organization. The versatile layout allows for customization options, with the choice between a built-in desk for productivity or additional storage for personal belongings.

Functional Design

Optimized Layout
Designed with efficiency and versatility in mind, the Queen Bunk Room Mod maximizes space utilization within its compact footprint to provide a functional and comfortable living environment. The thoughtful layout ensures that each occupant has sufficient room for relaxation, personal storage, and workspace, enhancing the overall quality of living within the space.

Customizable Options
The modular design of the Queen Bunk Room Mod allows for customizable options to suit individual preferences and needs. Choose from a range of finishes, fixtures, and amenities to personalize the interior space according to specific requirements and aesthetic preferences.

08. Flex Room

The Flex Room Mod offers a versatile and adaptable solution for creating additional living space or functional areas within a modular home or living environment. Whether used for leisure, work, or recreation, it provides a customizable and comfortable space that can be tailored to meet the unique needs and preferences of occupants.

Interior Dimensions

  • Width 7 feet 4 inches

  • Length 11 feet 4 inches

  • Total Interior Area Approx. 83.33 sq/ft

Key Features

Versatile Usage

The Flex Room Mod offers a flexible interior space that can be customized to suit a variety of purposes and preferences.

Whether used as an extra living room space, dining area with a kitchen table for seating, game room, gym, office, or any other desired function, the possibilities are endless.

Functional Design

Optimized Layout
Designed to maximize functionality and adaptability, the Flex Room Mod features an open layout that allows for seamless integration of different furniture arrangements and activity areas.

The spacious interior provides ample room for various activities and furnishings, ensuring versatility and comfort for occupants.

Customizable Options
The modular design of the Flex Room Mod allows for customizable options to accommodate specific needs and preferences.

Choose from a range of finishes, fixtures, and amenities to personalize the interior space according to individual requirements and lifestyle preferences.

TAKE ME THERE ❯

Explore Mods

Get Started

CHAT WITH RYAN ❯